Machbarkeitsstudie LKH
2025
Standort: Eisenerz
Gebäudekategorie: Tourismus
Bauvorhaben: Umbau eines ehemaligen Krankenhauses in eine Hotelanlage
Leistungsumfang: Machbarkeitsstudie
Nutzfläche: 5600 m²
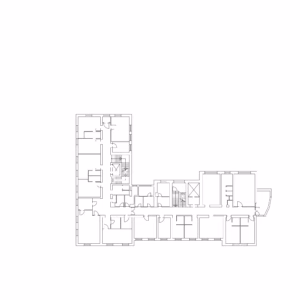
Das ehemalige Landeskrankenhaus Eisenerz wird im Rahmen einer Machbarkeitsstudie neu gedacht. Ziel ist die Reaktivierung des leerstehenden Bestandsgebäudes durch zukunftsfähige Nutzungsszenarien mit Mehrwert für Stadt und Region. Auf Basis von Gesprächen mit der Stadtgemeinde und einer Gebäudebesichtigung wurden unterschiedliche Nachnutzungen untersucht – von Gesundheits- und Pflegeeinrichtungen über betreutes Wohnen bis hin zu touristischen Konzepten wie einem Seminar- oder Themenhotel. Als konkretes Konzept wurde die Umnutzung zu einem Hotel mit Seminar- und Wellnessnutzung vertieft ausgearbeitet. Die stabile Bausubstanz, der genehmigte Hubschrauberlandeplatz sowie die regionale und touristische Einbettung bilden wesentliche Grundlagen der Studie.
Im Untergeschoss ist ein Restaurant vorgesehen, während das Erdgeschoss mit Lobby, Rezeption und Seminarräumen die öffentlichen Funktionen bündelt. Die Obergeschosse werden zu Hotelzimmern umgebaut und durch einen Neubau erweitert, um zusätzliche Zimmer zu schaffen. Eine Aufstockung ergänzt das Raumprogramm um einen Wellnessbereich mit Pool am Dach, Sauna, Spa,
Massage- und Fitnessangeboten. Ein besonderes Augenmerk liegt auf der wirtschaftlichen Tragfähigkeit und Umsetzbarkeit der vorgeschlagenen Szenarien. Die Studie versteht sich als realistische Entscheidungsgrundlage für die schrittweise Weiterentwicklung des Areals.






