leonding | 2018
Standort: Leonding
Gebäudekategorie: Einfamilienhaus
Leistungsumfang: Generalplanung, Bauleitung
Bauweise: Massivbau
Planungsbeginn: 2016
Baubeginn: 2017
Fertigstellung: 2018
Nutzfläche: 315 m²
Grundstücksfläche: 3026 m²
Fassade: Spachtelglattputz schwarz I betongrau
Dach: Flachdach begrünt I geknicktes Satteldach
Raumhöhe: 2,6m - 3,64m
Energiekonzept: Luftwärmepumpe,
Trinkwasserbrunnen, BUS-System
Eine schwarze Villa mitten im Dorfgebiet
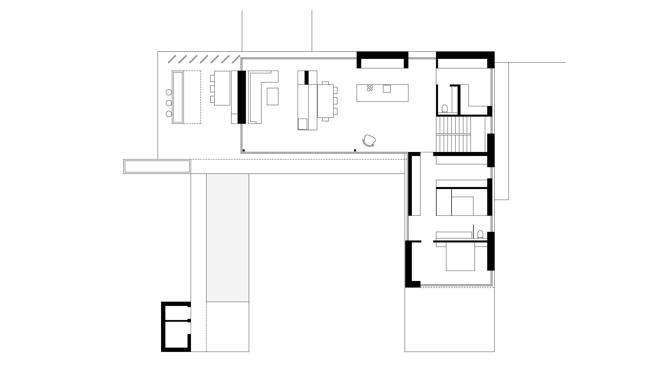
Ausgangspunkt war ein großes, Hanggrundstück im Zentrum eines dörflichen Gebiets, ein bestehender Erdkeller und ein zuvor abgebrochenes landwirtschaftliches Gebäude. Auf der Parzelle wird das Einfamilienhaus südlich situiert, wobei ein nördlich gelegener Obst- bzw. Spielgarten die Einbettung des Wohnhauses in die bestehende Dorfstruktur unterstützt.
Der Bauherrenwunsch eines weißen Bungalows mit Flachdach konnte aufgrund der Beurteilung des Gestaltungsbeirates nicht erfüllt werden. Die architektonische Antwort auf die Entscheidung – eine schwarze Glattputzfassade, statt einer weißen Grobputzfassade. Durch die dunkle Fassade wird zum einen eine bessere Eingliederung in die Natur ermöglicht, zum anderen eine geringere Reflexion erreicht. Die Gebäudehöhe an der Zufahrtsseite wird durch das zurückgesetzte Untergeschoß, welches
in betongrau erscheint, optisch reduziert. Die Höhenentwicklung des Gebäudes wurde so konzipiert, dass es mit der umgebenden Bebauung korrespondiert und nicht konkurriert. Der zum Garten hin orientierte Wohn- Koch- und Essbereich erscheint als Bungalow. Die Form des Gebäudes in Verbindung mit dem Poolhaus ergibt eine hofartige Grundrissform, welche vor Einblicken schützt, jedoch Ausblicke bis zur Alpenkette zulässt.
Neben dem Wohnbereich findet sich auch der Elternbereich auf der Ebene wieder. Im unteren Geschoß sind unter anderem der Eingangsbereich, das Büro, ein Haustechnikraum, der Zugang zum Erdkeller, ein Stüberl und die Garage angeordnet. Das Obergeschoß ist für die Kinder angedacht. Das geknickte Steildach ermöglicht eine große Raumhöhe, welche im Zusammenspiel mit den Hochbetten eine optimale Raumnutzung erlaubt.